Appartamento Trevi Centro -Rif.01685

Centro Storico – via Dogali, inserito in un complesso caratteristico di cinque unità,
nelle immediate vicinanze della Piazza principale (Piazza Mazzini),
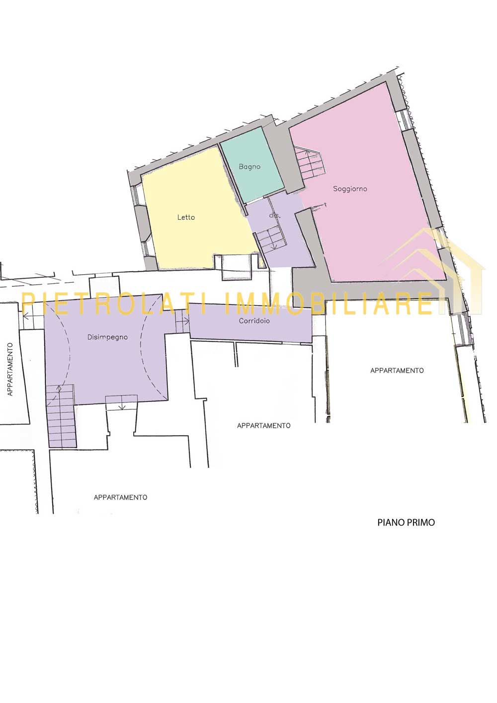
Appartamento con bellissima vista panoramica, completamente ristrutturato al piano primo composto da: ingresso, ampia zona giorno con cucina, camera, bagno e soppalco.
L’ abitazione è dotata di inferriate e portone blindato
Classe Energetica: in fase di definizione
Prezzo: € 95.000,00
Trevi – Centro Storico

Caratteristiche immobile
Generali
Tipologia: Appartamento
Locali: 5
Piano: Primo
Totale Piani: 1
Condizioni: ottimo stato-completamente ristrutturato
Superfici
SUPERFICI UTILI:
75,00 mq circa
Interno
Riscaldamento: Autonomo a radiatori














